141m² Kontor på 8. etage i Kattegat Silo i Frederikshavn
Silovej 8, 9900 Frederikshavn, Danmark
141 m²
2 Information
- Lot size, m²: 141 m²
- Tilføjet: Tilføjet for 3 måneder siden
- Bygning: Kattegat Silo
- Etage: 8. etage
- Type: Kattegat Silo, Kontor, Traditionelt Kontor
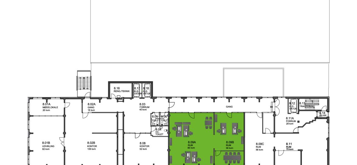
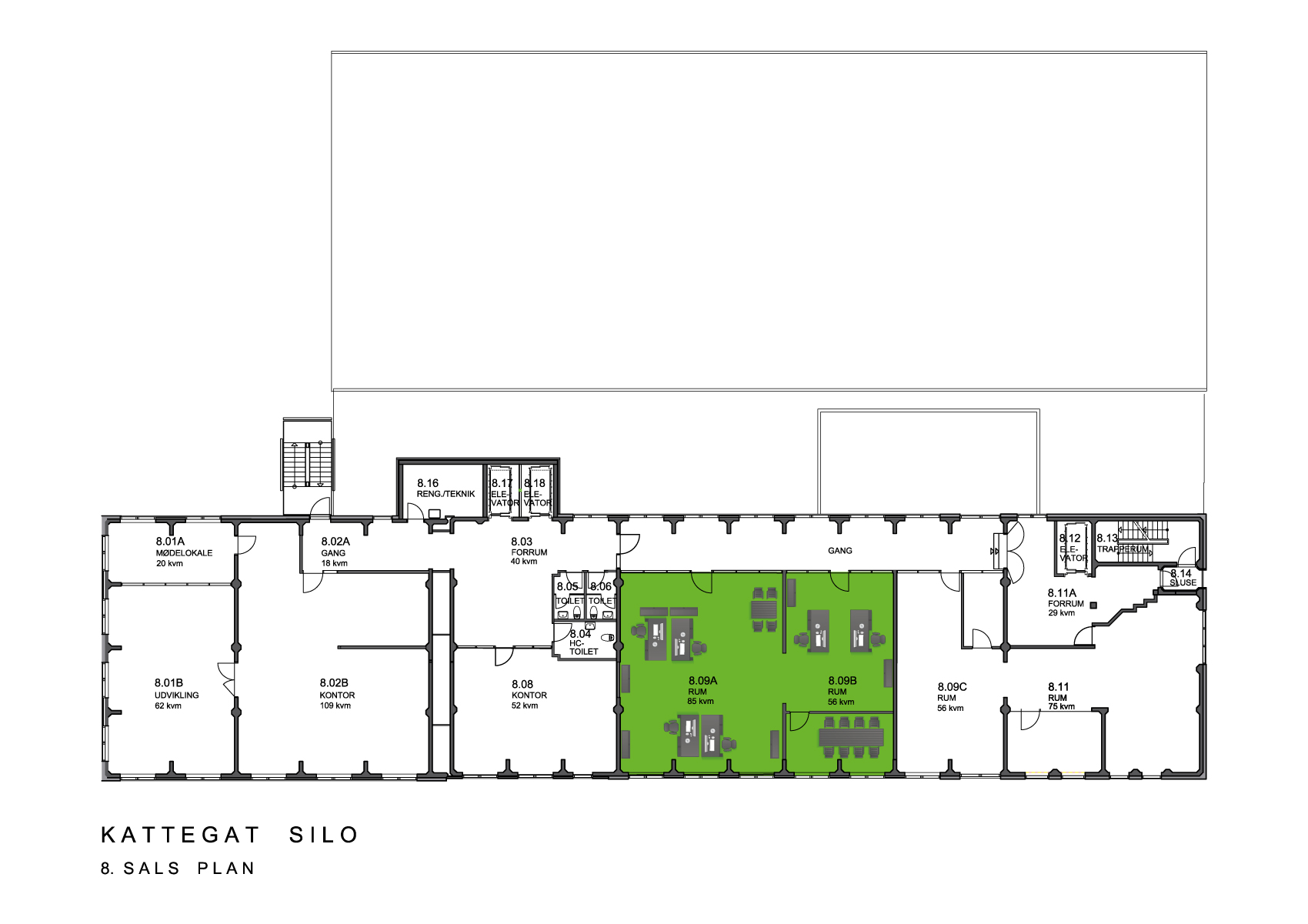
- Lokale nr.: 8.09A + 8.09B
- Status: Udlejet
- Antal rum: 2
- Antal etager: 1
- Opsigelsesperiode: 6 måneders opsigelse
- Depositum: 3 måneders leje
- Lejeudgift: Lejepris pr. måned:
_
- Årlige fællesudgifter: 21.150 kr.
- A conto varme/vand pr. år: 17.000 kr. (Pris bliver reguleret)
- Kategori: Udlejet
Beskrivelse
- Beskrivelse: PRÆSENTABELT KONTOR PÅ 141 M² I KATTEGAT SILO MED enestående UDSIGT
Lyst og rummeligt kontorlejemål til leje på 8. etage i Kattegat Siloen, Frederikshavn – med panoramaudsigt over byen mod vest og havnen og Kattegat mod øst.
Lejemålet udgør i alt 141 m² og er indrettet med to separate kontorrum samt et elegant mødelokale med glasvæg ud mod det ene kontor – en løsning, der skaber både gennemsigtighed og afskærmet ro. De to kontorrum er forbundet med en åben passage, hvilket skaber et naturligt flow og mulighed for både adskillelse og samarbejde.
Det stilfulde kontor har plads til min. 6-8 arbejdspladser og er klar til øjeblikkelig indflytning. De vestvendte vinduer sikrer et flot naturligt lysindfald, mens akustiklofter bidrager til et behageligt og sundt arbejdsmiljø.
Indretningen er holdt i lyse trægulve, der åbner rummet og giver fleksibilitet ift. både mørke og lyse kontormøbler.
Ønsker du en komplet løsning, tilbyder vi leje af møbler i samarbejde med vores faste møbelpartner – kontakt os for at høre nærmere.
(Bemærk: Lejemålet er umøbleret. Møblerne på billederne er ikke inkluderet i lejen.)Med lejemålet følger 2 faste parkeringspladser med firmaskilt, og der er desuden gratis gæsteparkering lige uden for døren.
Adgang sker nemt via elevator direkte fra Kattegat Siloens hovedindgang – eller via både indvendig og udvendig trappe.
KONTORLEJEMÅL I KATTEGAT SILO
I Kattegat Siloen tilbyder vi erhvervslivet kontorlejemål og faciliteter, der danner grobund for skabertrang og idérigdom. Omgivelser, der giver næring til initiativ og innovation og fungerer som katalysator for bæredygtig og langsigtet udvikling.
Kattegat Siloens mange og fleksible kvadratmeter giver din virksomhed mulighed for at vokse eller nedskallere efter behov.
Der er adgang til fælles kantine på 9. etage med mulighed for tilkøb af frokostordning. Siloen rummer desuden til 8 møde- og konferencelokaler – heraf to mindre mødelokaler i MAGASINET Kontorhotel – som kan benyttes frit. Se møde- og konferencelokaler her …
I stueetagen er der fælles reception for Kattegat Siloens lejere, hvor vores administrative medarbejdere er klar til at hjælpe dig eller dine gæster.
På 3. etage har vi indrettet et professionelt fitnesscenter ’FIT Club’, og vi tilbyder at du kan tilkøbe medlemskab til dig og dine medarbejdere på favorable vilkår. Læs mere om Fit Club her.Frederikshavn Maritime Erhvervspark udlejer lokaler og bygninger til erhvervsformål. Vi har over 50.000 m² bygninger og andre værftsfaciliteter på det tidligere Danyard-område på havnen i Frederikshavn – fordelt på Kattegat siloen og Dokøen.
Vores bygninger, lokaler og faciliteter er meget forskelligartede, og derfor kan vi dække stort set ethvert behov: fra kontor-, konference- og undervisningsfaciliteter til værksted, produktion og lagervirksomhed.
BLIV EN DEL AF ET STÆRKT NETVÆRK
Kattegat Siloen er centralt placeret på havnen i Frederikshavn. I nærområdet findes en række maritime virksomheder som arbejder sammen i et lokalt forankret maritime netværk – Maritime Network Frederikshavn. – Netværket tæller både store og små virksomheder på og omkring havnen i Frederikshavn. Virksomhederne i netværket deler viden og ideer, skaber synlighed og arbejder sammen. Læs mere om Maritime Network Frederikshavn her …
Kattegat Siloen huser bl.a. Erhvervshus Nord. Erhvervshus Nord er driftsorganisation for de tre erhvervsforeninger i Skagen, Frederikshavn og Sæby, der tilsammen har næsten 600 medlemmer. Erhvervshus Nord løser erhvervsopgaver for Frederikshavn Kommune, og kan blive en aktiv medspiller i din virksomheds udvikling. Læs mere om Erhvervshus Nord her …
Services til vores lejere!
Vi tilbyder en række unikke services, fællesfaciliteter, såsom fitnesscenter, frokostkantine på toppen af Siloen, bemandet reception og fri adgang til 7 møde- og konferencelokaler med plads til op til 120 deltagere. Vores eksklusive fællesarealer, faciliteter og ejendomsservice bidrager til at din virksomhed altid fremstår professionel og kompetent.

MØDELOKALER
Som lejer har du fri adgang til Kattegat Siloens 7 møde- og konferencelokaler. Alle mødelokaler bookes online. Det er muligt at tilkøbe forplejning.

GRATIS PARKERING
Det er frit for alle lejere og gæster at bruge gæsteparkeringspladser ved Kattegat Siloen. Det er desuden muligt at leje parkeringsplads med firmaskilt.

FROKOSTKANTINE
Alle lejere kan benytte frokostkantinen på 9. etage i Kattegat Siloen. Alle hverdage serverer Holmbergs Køkken buffet med varm eller kold ret, salat og pålæg.

LAGERHOTEL
Er du på jagt efter lagerplads i tilknytning til dit kontor? Så finder du nu en smart løsning i Kattegat Siloen. Vores FlexLager er ideelt til virksomheder med et begrænset lagerbehov.

FITNESSCENTER
Lejere i Kattegat Silo og på DOKØEN kan træne i Fit Club Kattegat Silo. Et medlemskab giver fri adgang til fitness- og vægttræningssalen alle dage fra kl. 5-22.

LADELØSNING
Oplad din elbil foran Kattegat Siloen. AmpGo har opstillet 3 stk. 22 kW ladestandere, der let kan betjenes via en App. AmpGo tilbyder firmaaftaler til alle lejere.
Faciliteter & Services
- Faciliteter:
- Services:
Video
- Video:
Beliggenhed
- Land / Region: Danmark

