75m² Kontor på 5. etage i Kattegat Silo i Frederikshavn
Silovej 8, 9900 Frederikshavn, Danmark
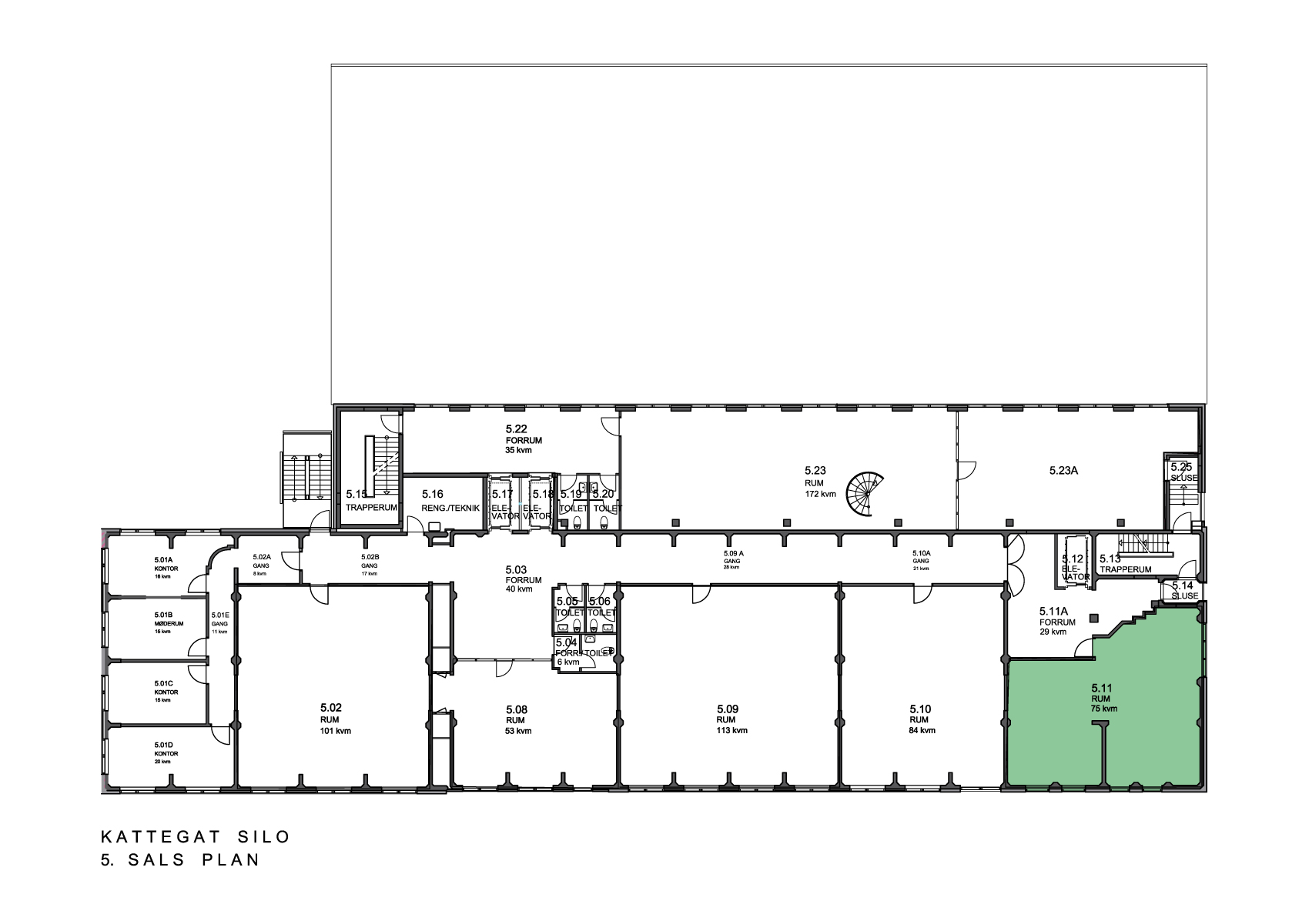
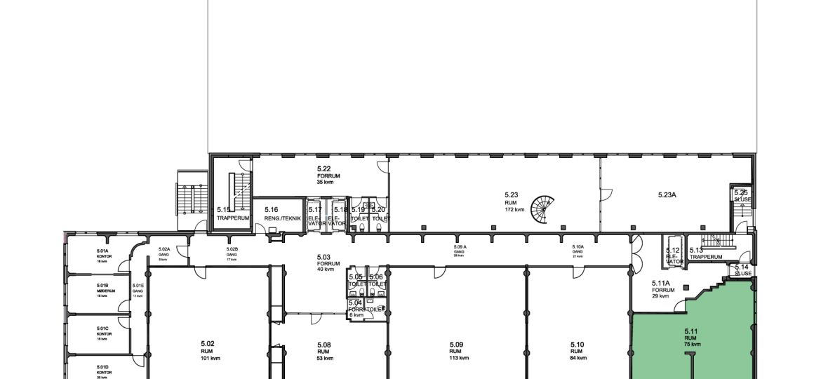
75 m²
1 Information
- Lot size, m²: 75 m²
- Tilføjet: Tilføjet for 3 uger siden
- Bygning: Kattegat Silo
- Etage: 5. etage
- Type: Kattegat Silo, Kontor, Traditionelt Kontor
- Lokale nr.: 5.11
- Status: Udlejet
- Antal rum: 1
- Antal etager: 1
- Opsigelsesperiode: 6 måneders opsigelse
- Depositum: 3 måneders leje
- Lejeudgift: Lejepris pr. år:
_
- Årlige fællesudgifter: 11.250 kr. (Pris bliver reguleret)
- A conto varme/vand pr. år: 6.500 kr. (Pris bliver reguleret)
- Kategori: Udlejet
Beskrivelse
- Beskrivelse: Lejemålet er ledigt pr. 1. juni 2026EKSKLUSIVT KONTOR TIL LEJE PÅ 75 M² MED ENESTÅENDE UDSIGT
RUMMELIGT KONTOR TIL LEJE I FREDERIKSHAVN
Leder du efter et kontor til leje i Frederikshavn med udsigt, lys og fleksible rammer?
Dette eksklusive kontorlejemål på 75 m² er beliggende på 5. etage i den ikoniske Kattegat Silo – midt i det maritime erhvervsområde i Nordjylland.Kontoret har en enestående udsigt over Frederikshavn by mod vest samt havnen og Kattegat mod syd. Placeringen i “tårnet” i Siloens sydlige ende har med store gulv-til-loft-vinduer et imponerende naturligt lysindfald – ideelt for virksomheder, der ønsker et præsentabelt og inspirerende arbejdsmiljø.
Indretning og fleksible muligheder
Dette erhvervslokale i Frederikshavn er indrettet med:
- Lyse akustiklofter for et sundt og behageligt indeklima
- Ludbehandlede trægulve og hvidmalede vægge
- Halvvæg, der giver mulighed for 3-4 arbejdspladser
- Alternativt 2-3 arbejdspladser og separat mødeområde
Lejemålet kan tilpasses efter behov og eventuelt opdeles yderligere. Vi kan desuden formidle kontakt til samarbejdspartner, der tilbyder udlejning af kontormøbler i høj kvalitet.
(Møblerne på billederne er ikke inkluderet i lejen.)
KONTORLEJEMÅL MED MASSER AF FÆLLESFACILITETER
Som lejer i Kattegat Silo får du adgang til en række attraktive fællesfaciliteter:
- Toiletter og tekøkken på etagen
- Bemandet reception i stueetagen
- Teknisk service og vedligehold
- 1 fast parkeringsplads med firmaskilt
- Gratis gæsteparkering foran bygningen
Derudover tilbydes:
- Fælles kantine på 9. etage med mulighed for frokostordning
- Adgang til 7 møde- og konferencelokaler
- Medlemskab i fitnesscenteret FIT Club (etage 3A)
- Netværksmiljø med mere end 40 virksomheder i huset
KATTEGAT SILO – ERHVERVSLEJEMÅL I FREDERIKSHAVN
I Kattegat Siloen tilbyder Frederikshavn Maritime Erhvervspark (FME) erhvervslivet kontorlejemål og faciliteter, der danner grobund for skabertrang og idérigdom. Omgivelser, der giver næring til initiativ og innovation og fungerer som katalysator for bæredygtig og langsigtet udvikling.
Som lejer i Kattegat Silo, får du adgang til fælles kantine på 9. etage med mulighed for tilkøb af frokostordning, og derudover har du fri adgang til booking af 7 møde- og konferencelokaler – heraf to mødelokaler i MAGASINET Kontorhotel.
På etage 3A tilbyder vi tilkøb af medlemskab i vores fitnesscenter FIT Club. Fitnesscentret er udstyret med italiensk kvalitetsudstyr, og efter træningen er der omklædnings- og badefaciliteter.KATTEGAT SILO OG OMRÅDET
Kattegat Siloen var oprindeligt en kornsilo, men i 2004 blev siloen renoveret og ombygget til en moderne kontorbygning beregnet til erhvervslejemål. Siloen rummer 12.500 etagekvadratmeter, og der er 10 etager i selve siloen og 13 etager i ”tårnet”. Kontorlokalerne er velegnede til iværksættere, mindre erhvervsdrivende og større virksomheder, som har brug for kontor til leje i Nordjylland. Ejendommen er meget attraktiv, da Siloens placering tæt på motorvej E45, færgehavnen i Frederikshavn og bus- og, gør at man som virksomhed er meget tilgængelig. Samtidig er der kort afstand til Frederikshavn centrum og Frederikshavn Rådhus. Kattegat Siloen huser bl.a. Frederikshavn Erhvervsråd, Marlog og 40 andre virksomheder, så der er rig mulighed for at netværke.
På 9. etage i Kattegat Siloen finder du selskabsrestauranten Holmbergs Køkken.
Frederikshavn Maritime Erhvervspark udlejer lokaler i Kattegat Siloen og bygninger til erhvervsformål på DOKØEN - det tidligere Danyard-område på havnen i Frederikshavn.
Vores bygninger, lokaler og faciliteter er meget forskelligartede, og derfor kan vi dække stort set ethvert behov: fra kontor-, konference- og undervisningsfaciliteter til værksted, produktion og lagervirksomhed.
Services til vores lejere!
Vi tilbyder en række unikke services, fællesfaciliteter, såsom fitnesscenter, frokostkantine på toppen af Siloen, bemandet reception og fri adgang til 7 møde- og konferencelokaler med plads til op til 120 deltagere. Vores eksklusive fællesarealer, faciliteter og ejendomsservice bidrager til at din virksomhed altid fremstår professionel og kompetent.

MØDELOKALER
Som lejer har du fri adgang til Kattegat Siloens 7 møde- og konferencelokaler. Alle mødelokaler bookes online. Det er muligt at tilkøbe forplejning.

GRATIS PARKERING
Det er frit for alle lejere og gæster at bruge gæsteparkeringspladser ved Kattegat Siloen. Det er desuden muligt at leje parkeringsplads med firmaskilt.

FROKOSTKANTINE
Alle lejere kan benytte frokostkantinen på 9. etage i Kattegat Siloen. Alle hverdage serverer Holmbergs Køkken buffet med varm eller kold ret, salat og pålæg.

LAGERHOTEL
Er du på jagt efter lagerplads i tilknytning til dit kontor? Så finder du nu en smart løsning i Kattegat Siloen. Vores FlexLager er ideelt til virksomheder med et begrænset lagerbehov.

FITNESSCENTER
Lejere i Kattegat Silo og på DOKØEN kan træne i Fit Club Kattegat Silo. Et medlemskab giver fri adgang til fitness- og vægttræningssalen alle dage fra kl. 5-22.

LADELØSNING
Oplad din elbil foran Kattegat Siloen. AmpGo har opstillet 3 stk. 22 kW ladestandere, der let kan betjenes via en App. AmpGo tilbyder firmaaftaler til alle lejere.
Faciliteter & Services
- Faciliteter:
- Services:
Beliggenhed
- Land / Region: Danmark

